
En la la Bienal de Arquitectura de Chicago, fue presentada la “Vivienda popular”, proyecto de la arquitecta mexicana Tatiana Bilbao.
Durante la Bienal de Arquitectura de Chicago, uno de los proyectos estrella que ahí se presentaron fue la denominada “Vivienda popular”, proyecto de la arquitecta mexicana Tatiana Bilbao.


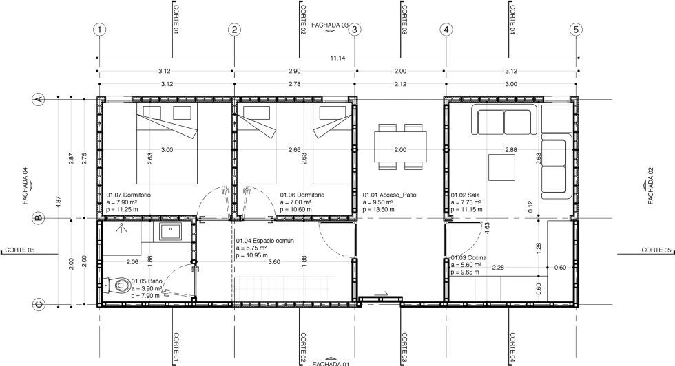
La casa distribuye su espacio de 63.35 metros cuadrados en dos habitaciones, un baño, una cocina y un salón comedor, por un costo de solo 120 mil pesos y con tiempo de construcción de un mes.
El acabado externo es con paredes de colores vivos. La construcción puede ser de bloque de adobe o de panel-w (poliestireno con armadura de alambre de acero).
“La arquitectura se ha alejado de la sociedad y tiene que volver a ser relevante, ejercitar su poder de dar o quitar calidad de vida. El beneficio social debe primar sobre el económico”, comentó la arquitecta.
La construcción es de aspecto ligero, cómodo y con una calidad muy superior a la habitual y el prototipo del proyecto de la mexicana ya ha sido probado en los estados de Chiapas y Coahuila.

Tatiana Bilbao fue galardonada en 2014 con el Premio Global de Arquitectura Sostenible. Su trabajo arquitectónico siempre se ha caracterizado por buscar mejorar las condiciones de vida de las personas.
Entre sus trabajos más reconocidos destaca la Casa Ajijic, una casa de verano ubicada en el Lago de Chapala que fue construida con materiales vernáculos y métodos tradicionales mexicanos.
Con información de El País.


